価格
13,480万円
所在地/交通
東京都品川区中延6丁目
東急大井町線「荏原町」駅 徒歩6分
都営浅草線「馬込」駅 徒歩7分
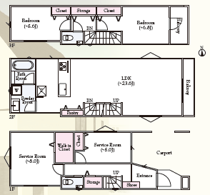
間取り/建物面積
4LDK
≪LDK23.6帖、8.0帖、6.8帖、5.6帖、5.0帖≫
128.82平米 / 約38.97坪
物件概要
| 価格 | 13,480万円 | ||
|---|---|---|---|
| 種別 | 新築一戸建て | ||
| 所在 | 東京都品川区中延6丁目 | ||
| 交通 | 東急大井町線「荏原町」駅 徒歩6分 都営浅草線「馬込」駅 徒歩7分 |
||
| 間取り | 4LDK ≪LDK23.6帖、8.0帖、6.8帖、5.6帖、5.0帖≫ |
||
| 土地面積 | 76.02平米 / 約23.00坪 | 建物面積 | 128.82平米 / 約38.97坪 |
| 構造 | 木造 | 築年 | 2026年6月 |
| 権利 | 所有権 | 用途地域 | 準工業地域 |
| 建蔽率 | 60% | 容積率 | 200% |
| 防火指定 | 準防火地域 | 高度地区 | 第二種高度地区 |
| 接道・方位 | 東側2.4m | 現況 | 建築中 |
| 備考 | 【商店街の賑わいと、静かな住環境が心地よく調和する中延エリア】<br /> 中延6丁目、荏原町駅6分の立地に、23.6帖LDKと4部屋、8帖主寝室が叶える、余白ある日常。 | ||

