価格
16,880万円
所在地/交通
東京都大田区南千束1丁目
東急大井町線「北千束」駅 徒歩5分
東急池上線「長原」駅 徒歩6分
東急目黒線「大岡山」駅 徒歩15分
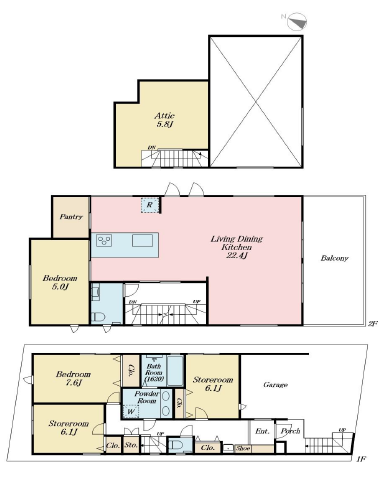
間取り/建物面積
4LDK
《LDK22.4帖、7.6帖、6.1帖、6.1帖、5.0帖≫
127.79平米 / 約38.66坪
物件概要
| 価格 | 16,880万円 | ||
|---|---|---|---|
| 種別 | 新築一戸建て | ||
| 所在 | 東京都大田区南千束1丁目 | ||
| 交通 | 東急大井町線「北千束」駅 徒歩5分 東急池上線「長原」駅 徒歩6分 東急目黒線「大岡山」駅 徒歩15分 |
||
| 間取り | 4LDK 《LDK22.4帖、7.6帖、6.1帖、6.1帖、5.0帖≫ |
||
| 土地面積 | 116.28平米 / 約35.17坪 | 建物面積 | 127.79平米 / 約38.66坪 |
| 構造 | 木造 | 築年 | 2026年3月 |
| 権利 | 所有権 | 用途地域 | 第一種低層住居専用地域 |
| 建蔽率 | 50% | 容積率 | 100% |
| 防火指定 | 準防火地域 | 高度地区 | 第一種高度地区 |
| 接道・方位 | 南東側6.2m | 現況 | 建築中 |
| 備考 | 【利便と暮らしやすさが揃う大田区南千束】<br /> 北千束駅徒歩5分、長原駅6分、大岡山駅も15分の軽快なアクセスに、2階建て・22.4帖LDK+4部屋のゆとりある間取りを備え、家族の毎日を伸びやかに支える住まい。 | ||

