価格
7,880万円
所在地/交通
東京都大田区西蒲田5丁目
JR京浜東北線「蒲田」駅 徒歩5分
東急池上線「蓮沼」駅 徒歩8分
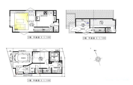
間取り/建物面積
3LDK
≪LDK16.2帖、4.8帖、3.6帖、3.0帖≫
80.34平米 / 約24.30坪
物件概要
| 価格 | 7,880万円 | ||
|---|---|---|---|
| 種別 | 新築一戸建て | ||
| 所在 | 東京都大田区西蒲田5丁目 | ||
| 交通 | JR京浜東北線「蒲田」駅 徒歩5分 東急池上線「蓮沼」駅 徒歩8分 |
||
| 間取り | 3LDK ≪LDK16.2帖、4.8帖、3.6帖、3.0帖≫ |
||
| 土地面積 | 50.04平米 / 約15.14坪 | 建物面積 | 80.34平米 / 約24.30坪 |
| 構造 | 木造 | 築年 | 2026年5月 |
| 権利 | 所有権 | 用途地域 | 第一種住居地域 |
| 建蔽率 | 60% | 容積率 | 200% |
| 防火指定 | 準防火地域 | 高度地区 | 第二種高度地区 |
| 接道・方位 | 西側3.3m | 現況 | 建築中 |
| 備考 | 【利便性と暮らしやすさが揃う大田区西蒲田】<br /> 蒲田駅徒歩5分という快適なアクセスに、3LDKの使いやすい間取りを備え、毎日の生活を便利で心地よく支える住まい。 | ||

