価格
27,800万円
所在地/交通
東京都中央区勝どき6丁目
都営大江戸線「勝どき」駅 徒歩5分
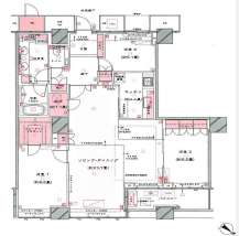
間取り/建物面積
3LDK
≪LDK28.1帖、8.8帖、6.5帖、5.1帖≫
110.23平米 / 約33.34坪
物件概要
| 価格 | 27,800万円 | ||
|---|---|---|---|
| 種別 | 中古マンション | ||
| 所在 | 東京都中央区勝どき6丁目 | ||
| 交通 | 都営大江戸線「勝どき」駅 徒歩5分 |
||
| 間取り | 3LDK ≪LDK28.1帖、8.8帖、6.5帖、5.1帖≫ |
||
| 土地面積 | - | 建物面積 | 110.23平米 / 約33.34坪 |
| 構造 | 56階/鉄筋コンクリート造地上58階建 | 築年 | 2008年1月 |
| 権利 | 所有権 | 用途地域 | - |
| 建蔽率 | - | 容積率 | - |
| 防火指定 | - | 高度地区 | - |
| 接道・方位 | 北東向き | 現況 | 空家 |
| 備考 | - | ||

