価格
66,299万円
所在地/交通
東京都港区三田1丁目
東京メトロ南北線「麻布十番」駅 徒歩5分
都営三田線「芝公園」駅 徒歩10分
間取り/建物面積
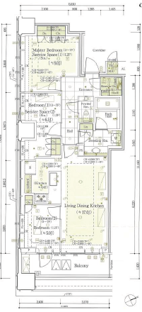
3LDK
≪LDK21.4帖、8帖、6.5帖、5帖≫
84.33平米 / 約25.51坪
物件概要
| 価格 | 66,299万円 | ||
|---|---|---|---|
| 種別 | 中古マンション | ||
| 所在 | 東京都港区三田1丁目 | ||
| 交通 | 東京メトロ南北線「麻布十番」駅 徒歩5分 都営三田線「芝公園」駅 徒歩10分 |
||
| 間取り | 3LDK ≪LDK21.4帖、8帖、6.5帖、5帖≫ |
||
| 土地面積 | - | 建物面積 | 84.33平米 / 約25.51坪 |
| 構造 | 2階/鉄筋コンクリート造・陸屋根・地上14階・地下2階 | 築年 | 2025年3月 |
| 権利 | 所有権 | 用途地域 | - |
| 建蔽率 | - | 容積率 | - |
| 防火指定 | - | 高度地区 | - |
| 接道・方位 | 東向き | 現況 | 空家 |
| 備考 | - | ||

