価格
108,000万円
所在地/交通
東京都港区西麻布4丁目
東京メトロ日比谷線「広尾」駅 徒歩9分
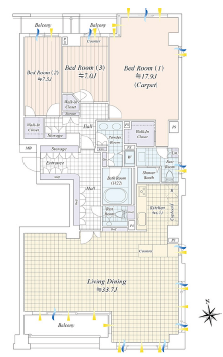
間取り/建物面積
3LDK
≪LDK33.7帖、17.9帖、7.5帖、7帖≫
168.54平米 / 約50.98坪
物件概要
| 価格 | 108,000万円 | ||
|---|---|---|---|
| 種別 | 新築マンション | ||
| 所在 | 東京都港区西麻布4丁目 | ||
| 交通 | 東京メトロ日比谷線「広尾」駅 徒歩9分 |
||
| 間取り | 3LDK ≪LDK33.7帖、17.9帖、7.5帖、7帖≫ |
||
| 土地面積 | - | 建物面積 | 168.54平米 / 約50.98坪 |
| 構造 | 3階/RC造地下1階付8階建 | 築年 | 2026年1月 |
| 権利 | 所有権 | 用途地域 | - |
| 建蔽率 | - | 容積率 | - |
| 防火指定 | - | 高度地区 | - |
| 接道・方位 | 南向き | 現況 | 建築中 |
| 備考 | - | ||

