価格
12,480万円
所在地/交通
東京都杉並区久我山5丁目
京王井の頭線「久我山」駅 徒歩5分
間取り/建物面積
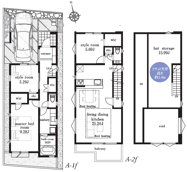
3LDK
≪LDK21.20帖、15.99帖、9.28帖、5.69帖、5.29帖≫
111.43平米 / 約33.71坪
物件概要
| 価格 | 12,480万円 | ||
|---|---|---|---|
| 種別 | 新築一戸建て | ||
| 所在 | 東京都杉並区久我山5丁目 | ||
| 交通 | 京王井の頭線「久我山」駅 徒歩5分 | ||
| 間取り | 3LDK ≪LDK21.20帖、15.99帖、9.28帖、5.69帖、5.29帖≫ |
||
| 土地面積 | 100平米 / 約30.25坪 | 建物面積 | 111.43平米 / 約33.71坪 |
| 構造 | 木造2階建 | 築年 | 2025年10月 |
| 権利 | 所有権 | 用途地域 | 第一種低層住居専用地域 |
| 建蔽率 | 50% | 容積率 | 100% |
| 防火指定 | 準防火地域 | 高度地区 | 第一種高度地区 |
| 接道・方位 | 北側約4.5m公道 | 現況 | 完成済 |
| 備考 | - | ||

