価格
7,980万円
所在地/交通
東京都杉並区高井戸東1丁目
京王井の頭線「浜田山」駅 徒歩11分
京王井の頭線「高井戸」駅 徒歩13分
間取り/建物面積
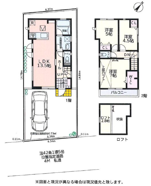
3LDK
≪LDK13.5帖、7.0帖、5.0帖、4.5帖≫
75.04平米 / 約22.70坪
物件概要
| 価格 | 7,980万円 | ||
|---|---|---|---|
| 種別 | 新築一戸建て | ||
| 所在 | 東京都杉並区高井戸東1丁目 | ||
| 交通 | 京王井の頭線「浜田山」駅 徒歩11分 京王井の頭線「高井戸」駅 徒歩13分 |
||
| 間取り | 3LDK ≪LDK13.5帖、7.0帖、5.0帖、4.5帖≫ |
||
| 土地面積 | 93.8平米 / 約28.37坪 | 建物面積 | 75.04平米 / 約22.70坪 |
| 構造 | 木造スレート葺2階建 | 築年 | 2025年9月 |
| 権利 | 所有権 | 用途地域 | 第一種低層住居専用地域 |
| 建蔽率 | 40% | 容積率 | 80% |
| 防火指定 | 準防火地域 | 高度地区 | 第一種高度地区 |
| 接道・方位 | 南東側4m私道 | 現況 | 完成済 |
| 備考 | - | ||

