価格
8,999万円
所在地/交通
東京都中野区白鷺3丁目
西武新宿線「鷺ノ宮」駅 徒歩10分
西武新宿線「下井草」駅 徒歩8分
間取り/建物面積
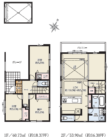
2LDK+S
≪LDK24.0帖、6.5帖、5.2帖、5.0帖≫
114.63平米 / 約34.68坪
物件概要
| 価格 | 8,999万円 | ||
|---|---|---|---|
| 種別 | 新築一戸建て | ||
| 所在 | 東京都中野区白鷺3丁目 | ||
| 交通 | 西武新宿線「鷺ノ宮」駅 徒歩10分 西武新宿線「下井草」駅 徒歩8分 |
||
| 間取り | 2LDK+S ≪LDK24.0帖、6.5帖、5.2帖、5.0帖≫ |
||
| 土地面積 | 95.25平米 / 約28.81坪 | 建物面積 | 114.63平米 / 約34.68坪 |
| 構造 | 木造スレート葺2階建 | 築年 | 2025年6月 |
| 権利 | 所有権 | 用途地域 | 第一種低層住居専用地域 |
| 建蔽率 | 60% | 容積率 | 150% |
| 防火指定 | 準防火地域 | 高度地区 | 第一種高度地区 |
| 接道・方位 | 北側約4.0m公道 | 現況 | 空家 |
| 備考 | - | ||

