価格
8,580万円
所在地/交通
東京都中野区江原町1丁目
都営大江戸線「新江古田」駅 徒歩5分
西武池袋線「江古田」駅 徒歩12分
間取り/建物面積
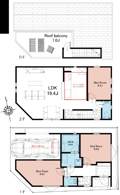
3LDK
≪LDK19.4帖、6.0帖、5.0帖、4.4帖≫
79.38平米 / 約24.01坪
物件概要
| 価格 | 8,580万円 | ||
|---|---|---|---|
| 種別 | 新築一戸建て | ||
| 所在 | 東京都中野区江原町1丁目 | ||
| 交通 | 都営大江戸線「新江古田」駅 徒歩5分 西武池袋線「江古田」駅 徒歩12分 |
||
| 間取り | 3LDK ≪LDK19.4帖、6.0帖、5.0帖、4.4帖≫ |
||
| 土地面積 | 60平米 / 約18.15坪 | 建物面積 | 79.38平米 / 約24.01坪 |
| 構造 | 木造在来2階建 | 築年 | 2025年12月 |
| 権利 | 所有権 | 用途地域 | 第一種低層住居専用地域 |
| 建蔽率 | 80% | 容積率 | 150% |
| 防火指定 | 準防火地域 | 高度地区 | 第一種高度地区 |
| 接道・方位 | 南側公道約6.0m、西側公道約6.0m | 現況 | 未完成 |
| 備考 | - | ||

