価格
18,800万円
所在地/交通
東京都世田谷区代沢3丁目
小田急線「下北沢」駅 徒歩12分
田園都市線「三軒茶屋」駅 徒歩16分
間取り/建物面積
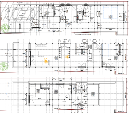
4LDK
≪LDK23.2帖、9帖、5.8帖、5帖、3.6帖≫
146.82平米 / 約44.41坪
物件概要
| 価格 | 18,800万円 | ||
|---|---|---|---|
| 種別 | 新築一戸建て | ||
| 所在 | 東京都世田谷区代沢3丁目 | ||
| 交通 | 小田急線「下北沢」駅 徒歩12分 田園都市線「三軒茶屋」駅 徒歩16分 |
||
| 間取り | 4LDK ≪LDK23.2帖、9帖、5.8帖、5帖、3.6帖≫ |
||
| 土地面積 | 99.59平米 / 約30.13坪 | 建物面積 | 146.82平米 / 約44.41坪 |
| 構造 | 木造 | 築年 | 2025年10月 |
| 権利 | 所有権 | 用途地域 | 第一種中高層住居専用地域 |
| 建蔽率 | 50% | 容積率 | 150% |
| 防火指定 | 準防火地域 | 高度地区 | 第一種高度地区 |
| 接道・方位 | 南側4.5m | 現況 | 完成済 |
| 備考 | - | ||

