価格
7,980万円
所在地/交通
東京都豊島区駒込3丁目
JR山手線・東京メトロ南北線「駒込」駅 徒歩5分
間取り/建物面積
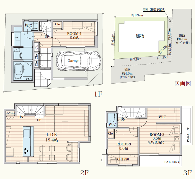
3LDK
≪LDK19.4帖、6.5帖、5.0帖、5.0帖≫
95.84平米 / 約28.99坪
物件概要
| 価格 | 7,980万円 | ||
|---|---|---|---|
| 種別 | 新築一戸建て | ||
| 所在 | 東京都豊島区駒込3丁目 | ||
| 交通 | JR山手線・東京メトロ南北線「駒込」駅 徒歩5分 | ||
| 間取り | 3LDK ≪LDK19.4帖、6.5帖、5.0帖、5.0帖≫ |
||
| 土地面積 | 68.29平米 / 約20.66坪 | 建物面積 | 95.84平米 / 約28.99坪 |
| 構造 | 木造3階建 | 築年 | - |
| 権利 | 旧法賃借 | 用途地域 | 第一種中高層住居専用地域 |
| 建蔽率 | 60% | 容積率 | 300% |
| 防火指定 | - | 高度地区 | - |
| 接道・方位 | 南東側公道セットバック後約4.0m、南西側公道セットバック後約4.0m | 現況 | 古屋あり |
| 備考 | - | ||

